top of page
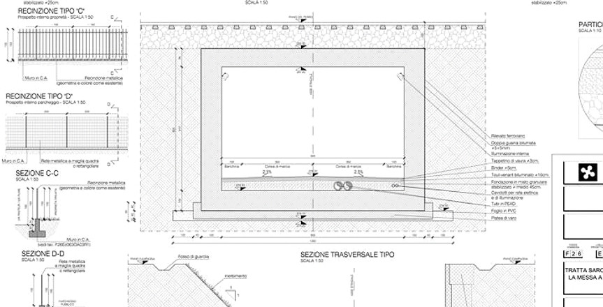
Progettazione sottopasso ciclopedonale e rotatoria nell’ambito di più ampi interventi per accessibilità e messa a standard degli impianti di Tradate e Abbiate Guazzone
Tradate e Abbiate Guazzone
Cliente
Nord_Ing S.r.l.
Anno di realizzazione
2010 – 2013
Attività
Collaborazione per la progettazione definitiva ed esecutiva di opere civili ed impianti



bottom of page

